
BRC Website Home
Quainton Virtual Stockbook
Quainton News Archive - Quainton News No. 72 - March 1993
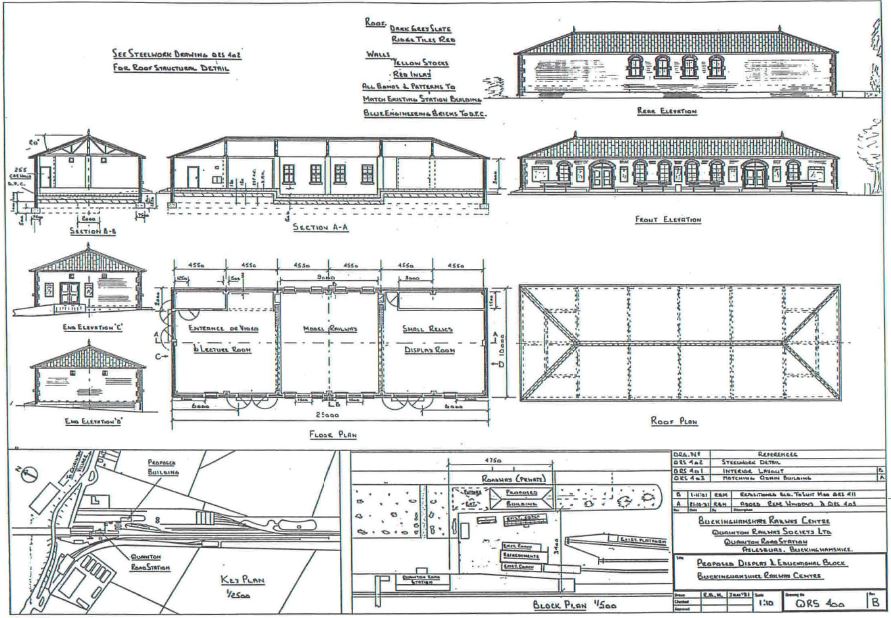
Our Proposed Display and Educational Building - by Roy Miller
|
Although it might be some years before we are in a position to start erecting this building, our Local Planning Authority asked that we submit all our plans for the area associated with our new entrance at the same time so that everything could be considered as a whole scheme. We have therefore now been given planning permission to erect the Display and Educational Building shown in this issue. As has been reported previously, we have been donated the superb model railway layout of the Grand Central Railway constructed by the late Dr Gardiner, and it is now quite urgent that we find somewhere to display it. The centre section of our proposed building will be used for this purpose. Drawing QRS 401 shows a floor plan of the building with the model railway set some 500 mm lower than floor level on either side so that visitors, especially children, can look over the whole layout which is 25ft by 25ft. Folding doors on either side of the model railway will allow this room to be isolated from the rest of the building for security reasons and to reduce the dust level within this area. The section to the north of the building may be used as an entrance / sales area when we are not busy, and one person can keep an eye on the whole building. On our major open days and when we have the field for car parking, we will use this room as a video theatre or for special displays. We are also in need of better facilities for our school party visitors. When being used as the entrance hall the projection room will double as a chair store. When used as a video room the sales counter and stock will be stored behind the roller blind. Our present small relics museum is now far too small and does not do justice to our ever expanding collection. We also need a building where our relics can be kept in better condition and properly displayed. We need more secure storage for relics not on display. As well as being a practical building, the exterior has been designed to match our existing station and the same combination of yellow and red bricks will be used. The roof will be dark grey imitation slates which are virtually indistinguishable from the original, with red ridge tiles. A number of possible sponsors have been approached for help in funding the construction of this building, which will otherwise be very long term. If we are able to make a start in the not too distant future we will be able to make a start in the not too distant future we will be able to extend our "out of season" schools activities and provide another attraction for our visitors, especially on non-steaming days. |
|
|
Notes: Reference: |
Text © Quainton Railway Society / Photographs © Quainton Railway Society or referenced photographer
Email Webmaster
Page Updated: 01 December 2017